纵横交错的地下轨道交通给人们的出行带来了极大的方便,但是修建的过程复杂漫长,天津地铁钢支撑的出现,在降低工程施工操作难度的同时又为施工安全增添一份保障。地铁钢支撑的施工是怎样开展的呢?小编通过查阅资料恍然大悟。

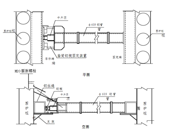
1、第一道钢支撑安装在冠梁上,使用22B工字钢制作的吊篮作为安装托架,钢支撑端头支撑在冠梁上。
2、每段土方分层开挖至支撑架设高度后,立即测放出支撑架设的位置线,安装三角架钢板,然后吊装锚固围檩支托,接着吊装钢围檩,检查围檩与围护桩水平连接牢固后,再吊装钢支撑。钢支撑吊装就位后,及时检查各节点的连接情况,及承压面是否平整,支撑与围檩轴线方向是否垂直等。如支撑端头与围檩接触面尚未平整,用钢片填塞垫平,以防钢支撑偏心受压,见流程图。


天津地铁钢支撑施工的技术要求:
①第一道支撑撑在冠梁上,待冠梁混凝土强度达到设计强度的80%才能安装钢支撑并施加轴力。
②拆除每道钢支撑前,确保已施做的结构混凝土强度达到设计强度的80%。
③拆除每道钢支撑时,根据测量结果,必要时采取换撑等加固措施。
④在支撑达到正常使用前,不得超挖下层土体。
⑤钢腰梁应紧靠围护桩平面,如有空隙应用鍥铁填充,并保证钢腰梁与围护桩接触面积。
⑥基坑开挖阶段钢支撑上施工荷载不得大于0.5KN/m,竖直方向不得附加施工荷载。
⑦横撑安装位置允许偏差为:高程±50mm,水平间距±100mm。
焊接要求:钢支撑焊接采用气体保护焊,施焊前,焊工应检查焊接部位的组装和表面清理的质量,如不符合要求,应修磨补焊合格后方能施焊。
天津地铁钢支撑的应用,为工程的提早结束,地铁的尽早开通作出了巨大的贡献。除了地铁基坑支护,各类地铁建设、民用基坑建设、高架建设、桥梁建设、房建内外架也均可使其大展身手。

------责任编辑:中鸿焰鑫森域
版权所有https://www.hyjc88.cn(中鸿焰鑫森域)转载请注明出处